Обяви 0 За нас Контакти
Продава 2-СТАЕН
град София, Център
ул. Царибродска
276 300 €
540 395.83 лв.

(3 329 €, 6 510.96 лв./m2)
Цената е с включено ДДС
Коригирана в 17:19 на 17 април, 2026 год.
Обявата е посетена 5841 пъти.
Площ:
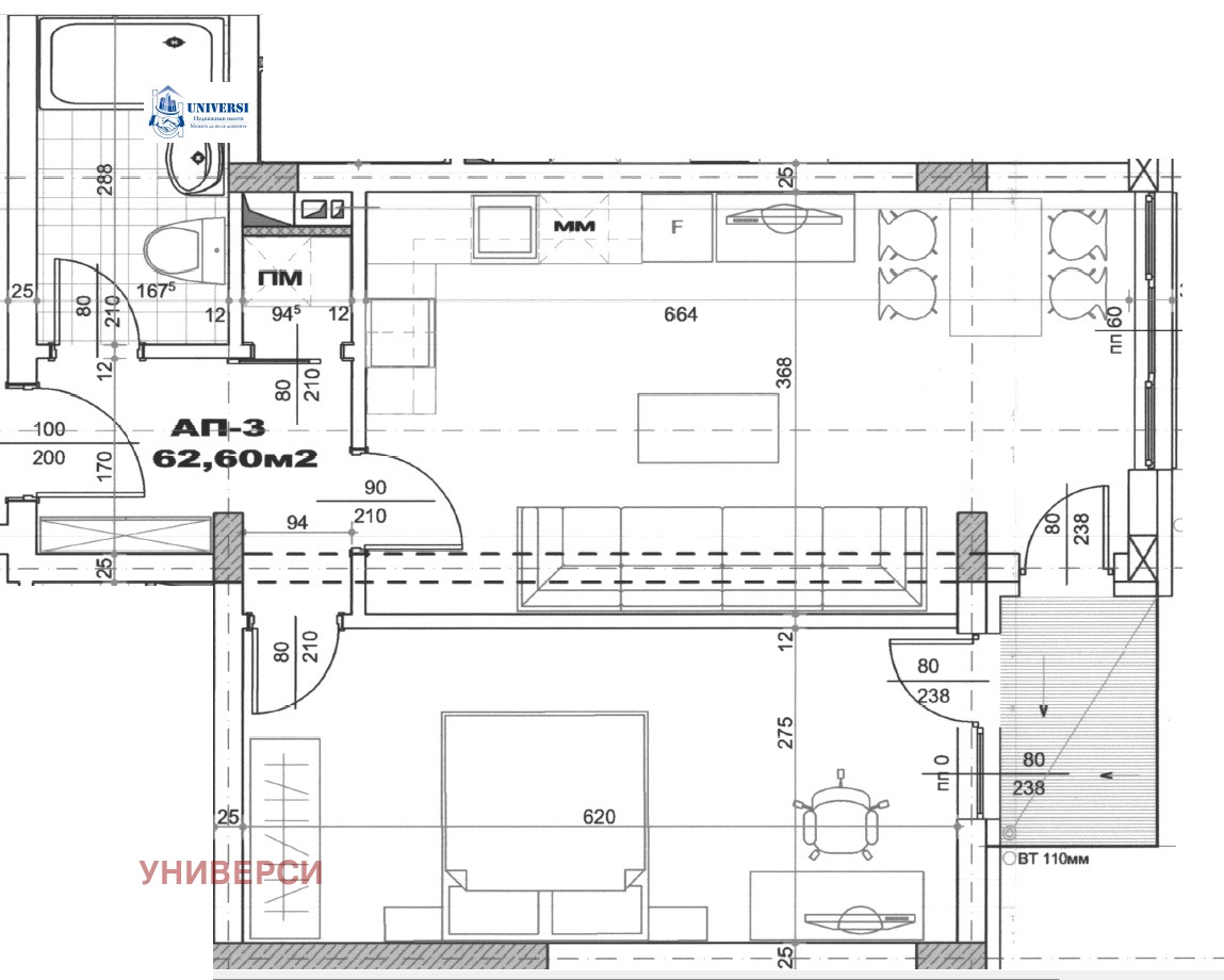
83 m2
Етаж:
2-ри от 8
ТEЦ:
ДА
Строителство:
Тухла, Въведен в експлоатация 2021 г.

Описание на имота:


Продаваме прекрасен, двустаен апартамент, със застроена площ от 63,45м2.
Жилището е напълно обзаведено и оборудвано.
Ползвано е две години, от което следи почти не са забележими.
Отоплението и топлата вода са осигурени от ТЕЦ. В жилищните помещения са монтирани климатици, а за периодите на профилактика има предвиден бойлер.
Налично е прилежащо складово помещение, с площ от 4,29м2.
Сградата е въведена в експлоатация през 2021-ва година и е с много добре поддържани общи части. Намира се на ул. 'Царибродска' 107.
Непосредствената близост до метростанция, мол и центъра на града, правят локацията на имота изключително привлекателна.
Имотите са собственост на фирма и цената е с включен ДДС.
Още наши оферти можете да намерите на www.universi.bg
Особености
Тухла
Асансьор
С действащ бизнес
Обзаведен
Видео наблюдение
Контрол на достъпа
Саниран
Възможност за дан. кредит
За контакт:
0885 441 447
Брокер:
Владимир Касамаков
0885 441 447
Офис: гр. София, ул. 'Милин камък' 57, ет.1
Още оферти от брокера: Продава | Дава под наем | Купува | Наема
Агенция:
УНИВЕРСИ
0885 441 447
УНИВЕРСИ logo
Медал за прослужено време
В imot.bg от 2012 г.
universi.imot.bg
Адрес:
област София, гр. София, ул. 'Милин камък' 57, ет.1
http://www.universi.bg
ИЗПРАТИ ЗАПИТВАНЕ
ИЗПРАТИ ЗАПИТВАНЕТО

Продава 2-СТАЕН
град София, Център
ул. Царибродска
Обява: 1b176892013106351

276 300 €
540 395.83 лв.
(3 329 €, 6 510.96 лв./m2)

Цената е с включено ДДС
ЗАПАЗИ ОБЯВАТА

Местоположение: град София, Център, ул. Царибродска

Допълнителни данни за имотите в района и сравнение с други райони

Покажи

Период

и 5 месеца

* Средните цени са определени чрез медианна стойност